Dom - Pleśna
Dom na sprzedaż
Pleśna, Pleśna
pow. 63,71m2, 930 000 zł
oferta
z
pow. całkowita
63,71
pow. działki
400,00
liczba pokoi
4
ogrzewanie
Elektryczne
standard
Bardzo dobry
szczegóły oferty
| Nr oferty | 0207871 | Typ nieruchomości | Dom |
|---|---|---|---|
| Kraj | Polska | Województwo | Zachodniopomorskie |
| Gmina | Będzino | Powiat | Koszalin |
| Miejscowość | Pleśna | Ulica | Pleśna |
| Rynek | Wtórny | Typ transakcji | Sprzedaż |
| Powierzchnia | 63.71 | Powierzchnia dzialki | 400.00 |
| Cena | 930 000 PLN | Ogrzewanie | Elektryczne |
| Garaż | Miejsce parkingowe | Stan techniczny | Bardzo dobry |
| Liczba pokoi | 4 | Ilość pięter | 0 |
| Rodzaj Własności | Własność | Rodzaj własności działki | Własność |
PLEŚNA / USTRONIE MORSKIE
Wyjątkowa oferta! Komfortowy dom 250 m od morza!
Na sprzedaż nowoczesny dom położony w urokliwej, nadmorskiej miejscowości Pleśna obok Ustronia Morskiego.
Wyjątkowa oferta! Komfortowy dom 250 m od morza!
Na sprzedaż nowoczesny dom położony w urokliwej, nadmorskiej miejscowości Pleśna obok Ustronia Morskiego.
To idealna propozycja zarówno jako dom wakacyjny, inwestycja pod wynajem premium, jak i miejsce do życia blisko natury i morza.
Dom wybudowany w 2021 roku z wysokiej jakości materiałów, starannie wykończony i sprzedawany wraz z pełnym wyposażeniem oraz umeblowaniem – gotowy do zamieszkania od razu.
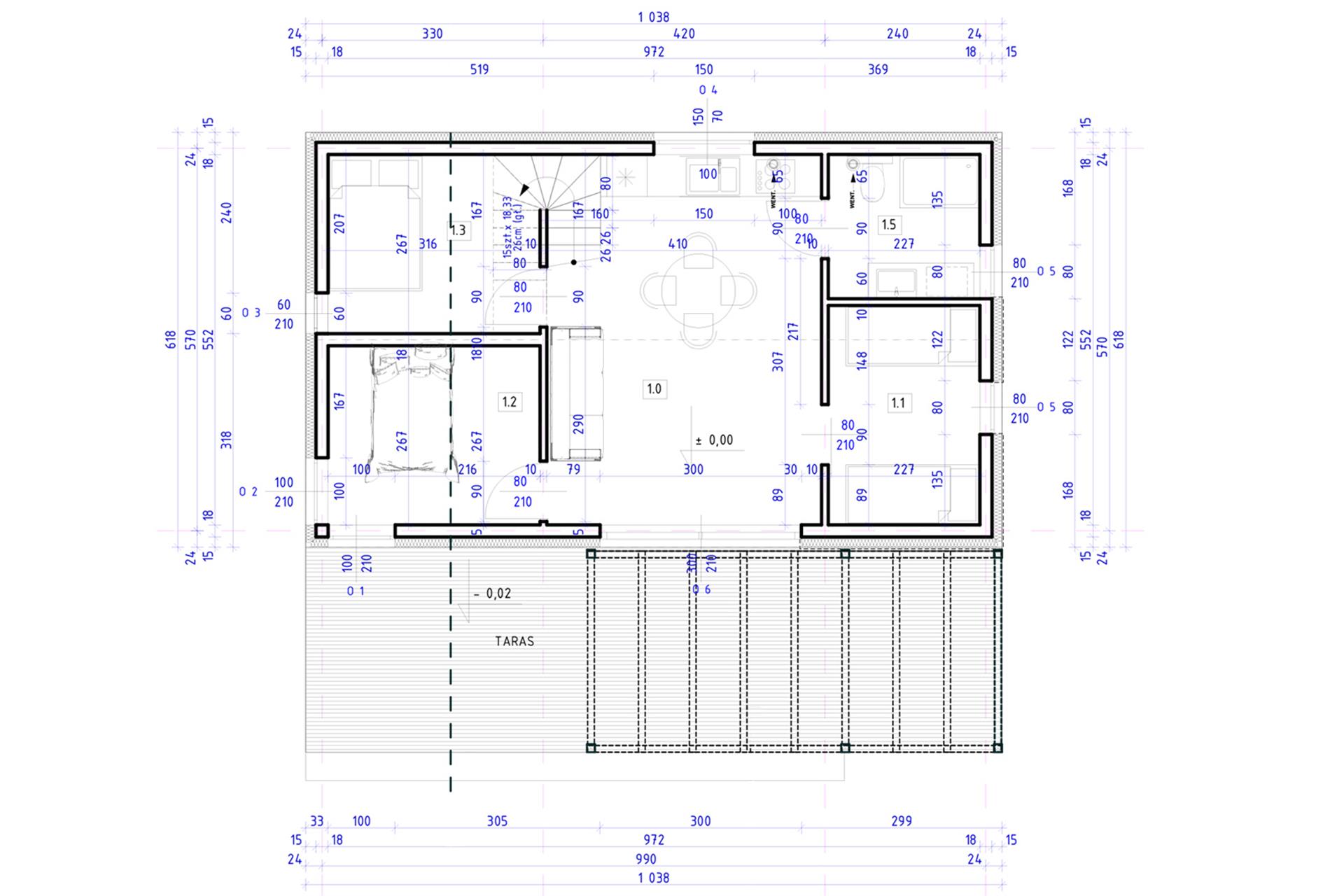
Rozkład pomieszczeń:
- salon z aneksem kuchennym w pełni wyposażony od zmywarki po ekspres ;
- 3 sypialnie;
- łazienka z kabiną prysznicową;
- antresola o pow. 6,21 m2 (18 m2 po podłodze) pełniąca rolę dodatkowego miejsca do wypoczynku / pracy;
- przestronny, słoneczny taras drewniany przed domem.
Standard i wyposażenie:
- Dom wykończony w wysokim standardzie, w nowoczesnym stylu z elementami marynistycznymi.
- Ogrzewanie elektryczne na podczerwień – ekonomiczne i komfortowe.
- Klimatyzacja.
- Kominek żeliwny.
- Rolety elektryczne zapewniające prywatność i bezpieczeństwo.
- Brama na pilota.
Działka o pow. 400 m2 (cała działka 1219 m2) ogrodzona i zagospodarowana, z licznymi nasadzeniami i z miejscem postojowym.
Bliskość Kołobrzegu i Mielna zapewnia dostęp do infrastruktury, restauracji i atrakcji turystycznych.
lokalizacja nieruchomości
galeria zdjęć
Opiekun oferty
Radosław Maciejewski
Zapytaj o szczegóły
Zobacz inne oferty:
Dom
930 000 PLN
Dom Sprzedaż:
Będzino
Lokalizacja: Będzino, Będzino
Powierzchnia: 186.00 m2
Powierzchnia: 186.00 m2
Dom
990 000 PLN
Dom Sprzedaż:
Koszalin
Lokalizacja: Koszalin, Brzozowa 4 i 4A
Powierzchnia: 595.72 m2
Powierzchnia: 595.72 m2




733 200 071